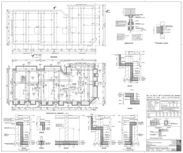
ZELFBOUW
Door als particulier zelf een huis te (laten) bouwen wordt het mogelijk vanaf de eerste lijn op papier tot het laatste schilderij aan de muur alles zelf te beslissen en mee te ontwerpen. Voor de constructieve onderbouwingen en controles helpt De Ingenieursgroep u graag.
Check onze dronevlucht over Amsterdam IJburg




